Mimari Proje, Tasarım Görselleştirme, Animasyon Maket, Sunum
Anasayfa
Hakkımızda
VİZYONUMUZ
MİSYONUMUZ
KALİTE POLİTİKAMIZ
BİZ KİMİZ?
YAYINLAR
Çalışmalarımız
DIŞ MEKAN TASARIMLARI
İÇ MEKAN TASARIMLARI
MAKET
GÖRSELLEŞTİRME ANİMASYON
STAND TASARIMLARI
RÖLÖVE RESTORASYON PROJELERİ
YAPI UYGULAMA PROJELERİ
Makaleler
İletişim
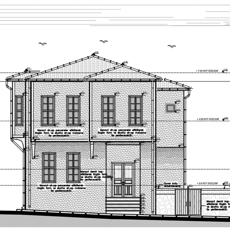
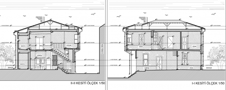
AKŞEHİR TESCİLLİ EV RESTORASYON PROJESİ